Aalberts IPS Revit plug-in
designa komplexa rörsystem snabbare med upp till 15 000 produkter från Aalberts integrated piping systems
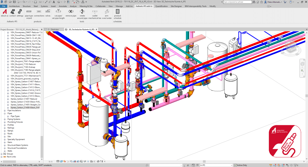
Aalberts integrated piping systems har utvecklat en gratis plug-in för Autodesk Revit med vilken användare enkelt och tydligt kan välja Revit-familjer och ladda dem till projekt. Utöver en biblioteksfunktion innehåller pluginet ett antal användbara verktyg som förenklar modelleringen av rörsystem inom Autodesk Revit.
- lämplig för Autodesk Revit versioner från 2019
- strukturerad data baserad på ETIM-MC standard
- optimerade rörtyper och dragningspreferenser baserat på applikation, godkännande och rörstandard
- urvals- och modelleringsverktyg som förenklar arbetsflödet och ökar produktiviteten
smart verktyg för snabbare Revit-modellering av rör och installationer med Aalberts integrated piping systems produkter
mjukvaruplugin för att rita dynamiska rörsystem i Revit

- gratis Revit-tillägg med direkt tillgång till den kompletta aktuella produktkatalogen av Aalberts integrated piping systems med upp till 15 000 produkter
- modelleringsverktyg för att förenkla arbetsflödet och öka produktiviteten
- rörsystemsguide med enkla filtreringsalternativ efter applikation, produktlinjer, rörmaterial och kvalitetsstandarder


